今天是:

采购信息

采购信息

当前位置: 首页 >> 采购信息 >> 正文

邵阳工业职业技术学院二级学院党员活动室建设采购公告

发布日期:2026-02-02    作者:     来源:     点击:

邵阳工业职业技术学院二级学院党员活动室建设

采购公告

 

、项目信息

采购单位:邵阳工业职业技术学院

项目名称:邵阳工业职业技术学院党员活动室建设项目

采购方式:公开询价采购

预算金额:280849.72(大写:贰拾捌万零捌佰肆拾玖元柒角贰分)

二、采购需求

装修二级学院党员活动室4间(d1/2/3/4教学楼2楼的教师办公室2间打通),每间建设内容均为拆除办公室墙体、墙面、天棚原装饰,新增地面复合板、墙面、天棚吊顶、门、灯具、插座等项目共装修4间,每间参数及要求如下:

1. 墙面拆除:将两间教师办公室从中间打通,拆除办公室墙面、天棚原装饰。

2. 墙体装修:新增地面复合板、墙面、天棚吊顶、门、灯具、插座、LED等项目。其中,单间活动室面积约74㎡;层高3.58m。

3. 按照施工图进行采购和施工,所采购物料规格要求需高于或等于施工图所列要求。现场施工安全由施工单位全权负责。具体需求详见文末附件效果图、设计图、清单及要求。(详细清单和施工图请于现场踏勘或报名时要求领取)

三、资格条件要求

1.基本资格条件:供应商应当具有建筑总承包三级及以上资质或者装饰装修工程二级及以上资质,安全生产许可证在有效期内。

2.项目配备人员不少于3人且提供本公司3个月连续社保。

3.具备履行合同所必需的设备和专业技术能力。

4.供应商未被列入失信被执行人或重大税收违法案件当事人名单,未被列入政府采购严重违法失信行为记录名单。

5、2个类似业绩。

四、报价文件要求:

报价文件应包含:

1.营业执照、资质、安全生产许可证、人员及3个月本公司社保、2个类似业绩

2.报价单位法人代表身份证复印件,非法人代表参与的需提供授权书(证明、盖公章)。

3.报价表(附产品或服务具体内容、品牌、型号、参数、图片等资料,盖公章)项目施工方案、安全施工(责任)承诺书。

4.满足此次询价方案的服务及售后的承诺书。(盖公章)

说明:以上文件缺一不可,否则视为无效报价。

五、供货及验收要求

1.按照清单要求的规格型号、工程量或服务要求完成。

2.要求达到采购需求的要求,经需求部门确认报采购办组织验收后能满足采购需求。

3.供货服务包含运输、售后,收货签字确认后开发票和送货单交需求部门报账

六、报名及评审

1.报名:根据本公告要求,凡符合条件的供应商请在2月5日中午12点前,进行电话报名登记或现场报名登记,为准确高效执行项目,现场自行踏勘 联系人:刘老师 13786906150 ,时间为:2月4日(8:30-11:30)。报名电话:0739-5339308,17773919875(张老师)或13036702451(谢老师)。未经报名登记的供应商报价资料均为无效报价。

2.递交资料:已报名的供应商请于2月5日上午8:00-12:00将响应文件使用牛皮纸密封并盖章交送至邵阳工业职院313评标室,逾期不候。

3.评审:接收到全部供应商报价资料后由本项目采购小组及纪检监察人员进行资格审查及评审,评审结果将以电话形式通知中标供应商。

4.如遇报价相同或询价小组对响应文件有明显疑问等特殊情况,我方将邀请供应商进行二次磋商。如第一中标人无法如期履约完成采购,该采购项目中止。

5.供应商须对其所提供资料的真实性和响应行为的合法性负责,如有作假或违纪,一经查实立即取消响应资格,并将其列入不良行为记录名单,禁止其参加学校的其他招标采购活动,同时向相关部门反映。

 

报名联系电话:0739-5339308

纪检监察投诉电话:0739-5338199

                            

                                             邵阳工业职业技术学院

                                                202622

 

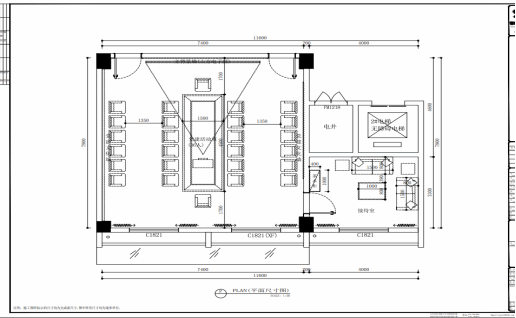
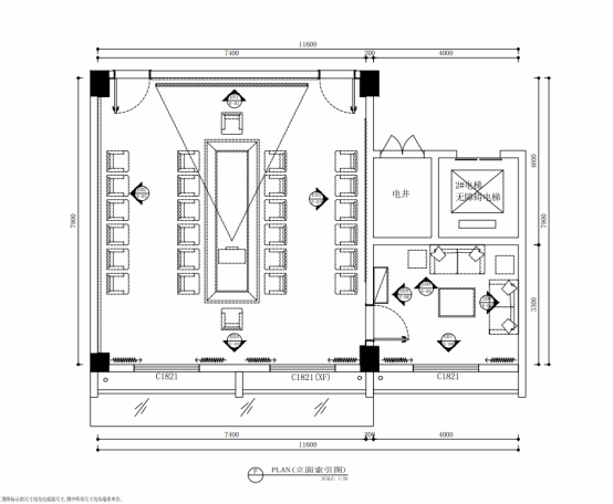
附件一:施工图 详细完整施工图请于现场踏勘或报名时要求领取)

施工图一

 

施工图二

 

 

附件二 采购清单、参数要求及服务要求((详细清单和施工图请于现场踏勘或报名时要求领取)

工程名称:邵阳工业职业技术学院-党建活动室装修工程  4个活动室总价清单                                         1页 共1页

序号

项目内容

金额(元)

1

分部分项工程项目

 

1.1

邵阳工业职业技术学院-党建活动室装修工程

 

1.1.1

拆除工程

 

1.1.2

建筑工程

 

1.1.3

装饰、装修工程

 

1.1.4

安装工程

 

 

 

 

2

措施项目

 

2.1

其中:安全生产措施项目

 

3

其他项目

 

3.1

其中:暂列金额

 

3.2

其中:专业工程暂估价

 

3.3

其中:计日工

 

3.4

其中:总承包服务费

 

3.5

其中:合同中约定的其他项目

 

4

增值税

 

 

 

注:专业工程暂估价为已含税价格,在计算增值税计算基础时不应包含专业工程暂估价金额。